Resumen
- 3 Dormitorio
- 3 Baño
- 132.00 m2
- 5 Ambientes
- 167.00 m2
Descripción
En venta casa interna No PH, 2 plantas con terraza, quincho y pileta.
La misma se encuentra en construcción con una fecha de entrega programada para Mayo 2026
Se ofrece a la venta una propiedad única por su amplitud, calidad constructiva y confort (caldera con radiadores, aberturas Módena) . Distribuida en tres plantas, esta casa combina funcionalidad, luminosidad y espacios pensados para el disfrute.
En planta baja se desarrolla un luminoso patio, ideal para encuentros al aire libre que aporta de luminosidad al extenso living comedor y a la cocina. La cocina se encuentra separada, bien equipada y con excelente ventilación. También posee un lavadero independiente. La propiedad también incluye un pequeño estudio, perfecto para trabajo remoto o espacio de lectura.
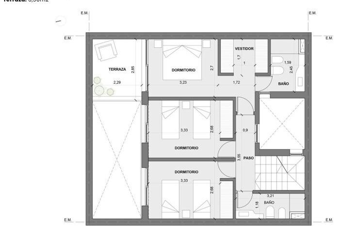
En la primera planta nos encontramos con 3 dormitorios, uno de ellos con vestidor y baño en suite, y acceso a un balcón/terraza privado que brinda un espacio exclusivo de relax.
La tercera planta sorprende con una espectacular terraza que integra quincho, solárium y pileta, creando un ambiente perfecto para reuniones, descanso y disfrute durante todo el año.
Además, cuenta con 2 baños completos y 1 toilette, distribuidos estratégicamente para mayor comodidad.
Una vivienda sólida, cómoda y versátil, ideal para quienes buscan calidad de vida y espacios amplios en cada nivel.
En una ubicación privilegiada, a pocos metros de paseo Pellegrini, plaza López, zona facultades, parque Urquiza.
Todas las medidas enunciadas son meramente orientativas, las medidas exactas serán las que se expresen en el respectivo título de propiedad de cada inmueble.
Corredores Responsables:
JOSEFINA DANTERRE – Mat. COCIR 1890
ALEJANDRO PIASTRELLINI – Mat. COCIR 2139
Dirección: Pasco 700, Rosario
Ciudad: Rosario
Area: Abasto
Provincia: Santa Fe
CP: c2000
País: Argentina
Abrir en Google Maps
Nro. Propiedad: 28866
Precio: USD 225.000
Tamaño de la propiedad: 132.00 m2
Tamaño del lote: 167.00 m2
Ambientes: 5
Dormitorio: 3
Baño: 3
Otras características
Agua Corriente
Agua Potable
Alarma
Alumbrado Publico
Ascensor
Balcón
Baulera
Cable
Cloaca
Cochera
Electricidad
Gas Natural
Internet
Jardín
Patio
Pavimento
Pileta
Quincho
Seguridad
Telefono
Terraza






















