Resumen
- 2 Dormitorio
- 3 Baño
- 116.00 m2
- 4 Ambientes
- 148.00 m2
Descripción
Venta casa de pasillo en pleno corazón de barrio Pichincha Rosario.
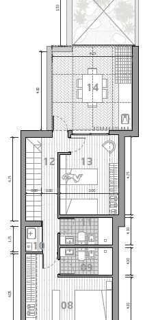
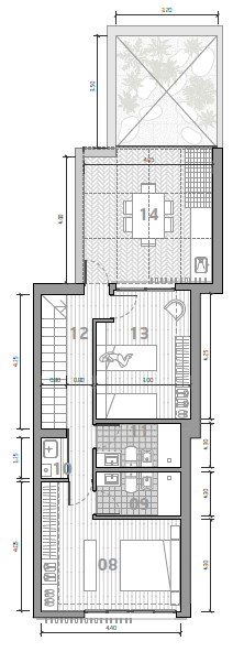
Distribuida en dos plantas, planta baja: cocina comedor integrada a un generoso estar que se abre hacia un patio de uso exclusivo, escritorio/playroom, guardarropa, toilette.
Planta alta se desarrolla el área privada, con dormitorio principal en suite, segundo dormitorio, baño
completo, lavadero y circulación hacia una terraza con parrillero.
Con 116 m² cubiertos y 31 m² descubiertos, esta propiedad combina el confort del diseño contemporáneo con el encanto de la clásica casa de pasillo.
Terminaciones
Cielorrasos: Suspendidos
Paredes: Enlucido de yeso
Aberturas: Aluminio Aluar blanco con DVH (doble vidriado hermético)
Pisos:
Estar/Comedor: Porcellanato de primera calidad.
Intimo/Dormitorios: Flotante símil madera de alta performance.
Cocina/Baños: Porcellanato de primera
Zócalos: Madera
Revestimientos Baños: Porcellanato de primera
Bajomesadas y alacenas cocinas: melamina
Mesada y alzada cocinas: granítica o similar
Mesadas Baños: granítica o similar
Mesada Toilette: cementicia o similar
Vestidor Habitación Ppal: Interiores sin frente
Placares Habitaciones secundarias: Frentes sin interiores
Griferías: FV o similiar calidad
Loza sanitaria: Ferrum o similar calidad
Patio: lajas de piedra natural + vegetación
Terraza: Parrillero de losa y ladrillo con pulmón de chapa, mesada de hormigón, bacha Johnson o calidad similar,
piso y revestimientos de ladrillo, pérgola metálica.
Equipamiento:
• Horno eléctrico empotrable
• Anafe a gas
• Caldera dual
• Preinstalación de radiadores
• Preinstalación de aires acondicionados
• Vestidor con interiores y sin frentes en habitación principal
• Mueble de guardado sin interiores en habitación secundaria
Fecha de entrega estimada: Julio 2026
Todas las medidas enunciadas son meramente orientativas, las medidas exactas serán las que se expresen en el respectivo título de propiedad de cada inmueble.
Corredores Responsables:
JOSEFINA DANTERRE – Mat. COCIR 1890
ALEJANDRO PIASTRELLINI – Mat. COCIR 2139
Dirección: Jujuy 2600 Rosario
Ciudad: Rosario
Area: Pichincha
Provincia: Santa Fe
CP: c2000
País: Argentina
Abrir en Google Maps
Nro. Propiedad: 28143
Precio: USD 195.000
Tamaño de la propiedad: 116.00 m2
Tamaño del lote: 148.00 m2
Ambientes: 4
Dormitorio: 2
Baño: 3
Otras características
Agua Corriente
Agua Potable
Alarma
Alumbrado Publico
Ascensor
Balcón
Baulera
Cable
Cloaca
Cochera
Electricidad
Gas Natural
Internet
Jardín
Patio
Pavimento
Pileta
Quincho
Seguridad
Telefono
Terraza














